$1,199,999
 $6,442 est/mo Sourced by Back At You

14015 159th Street,Jamaica, NY 11434

Jamaica, NY 11434

Share:

Description

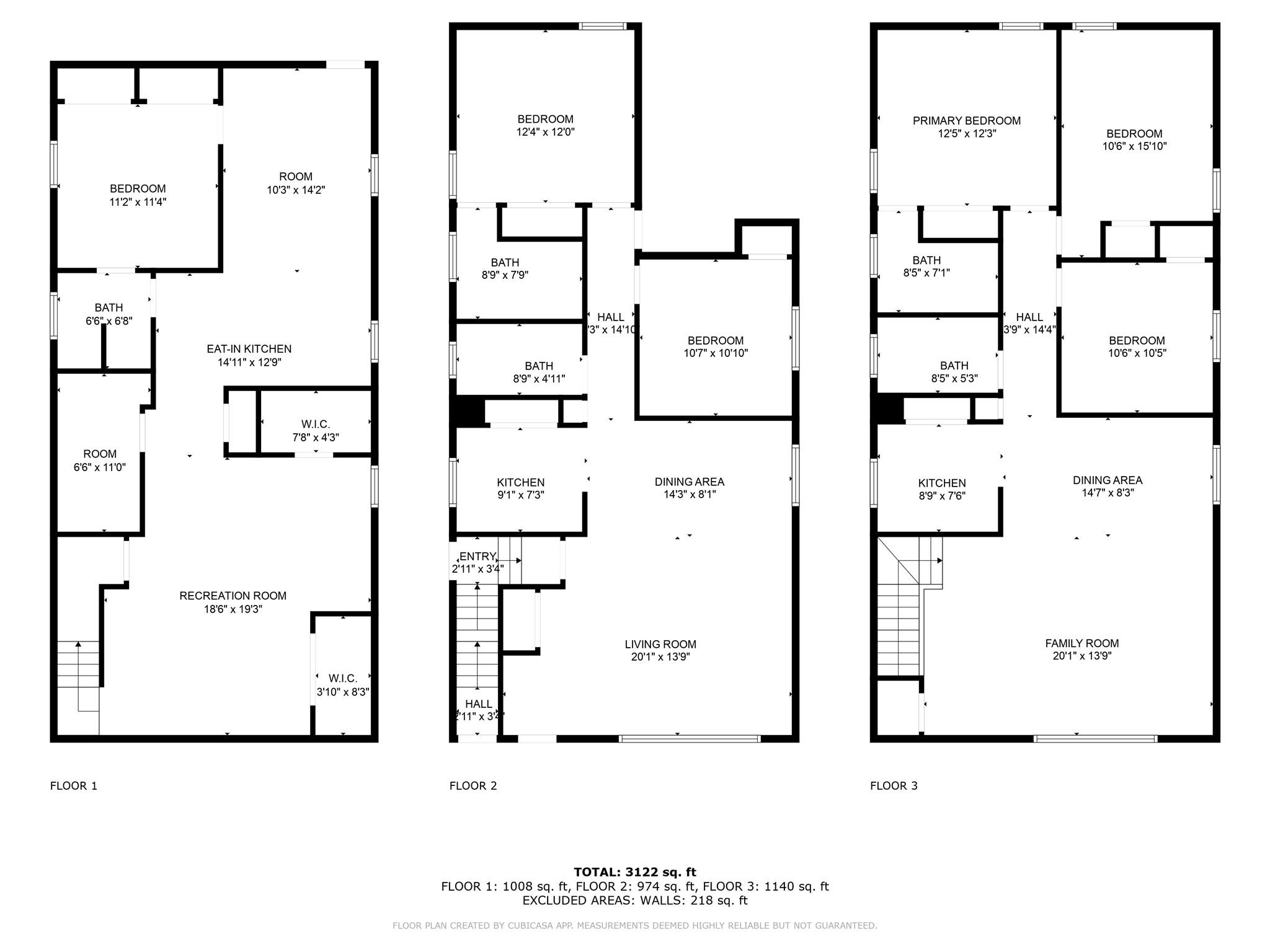
Discover this exceptional multifamily propertya fantastic opportunity for homeowners and investors alike! Located in the vibrant community of Rochdale, this spacious 2-family home offers generous living space and unbeatable convenience. Each unit features: three bedrooms, two full bathrooms, cozy living room, and well-appointed kitchen with an adjacent dining area. The fully finished basement includes an OSE, providing additional living. Sitting on a 40 x 100 lot, the property also boasts a private two-car driveway, adding convenience for residents and guests. Enjoy proximity to: John F. Kennedy International Airport, Jamaica Center-Parsons/Archer station- offering easy access to subway and bus lines, Resorts World Casino, UBS Arena & Shops at Belmont Park and Green Acres Mall. Whether you're seeking a comfortable multi-generational home or a smart investment in a prime location, this property offers the perfect blend of space, accessibility, and community charm. Schedule your showing today!

Details

MLS #872318
Listing TypeFor Sale
Sub-TypeResale
StatusPending
Year1996
Days On Site160
Listing Provided ByPeoples Realty & Associates | Chrystina Peoples

Features

Bed(s)7
Bath(s) 5 Total
SQ Feet3,122
BasementY
Units2
Acreage0.09

Interior

CoolingMulti Units
HeatingNatural Gas
Interior FeaturesFirst Floor Bedroom, First Floor Full Bath, Ceiling Fan(s), Natural Woodwork, Washer/Dryer Hookup

Exterior

Construction MaterialsBrick, Vinyl Siding
Lot FeaturesFront Yard
FencingFenced, Front Yard

Parking

Garage Yes / NoNo
Parking FeaturesDriveway

Utilities

UtilitiesElectricity Connected, Natural Gas Connected, Trash Collection Public, Water Connected
SewerPublic Sewer

Taxes

Tax Year2024
Tax Assessed Value57240
Tax Annual Amount9054

Area Information

StateNY
CountyQueens
CityJamaica
Zip Code11434
Sourced by Back At You

Request a showing

Request a showing

Loading Form
MLS Internet Data Exchange (IDX) information is provided exclusively for consumers’ personal, non-commercial use and may not be used for any purpose other than to identify prospective properties consumers may be interested in purchasing, and that the data is deemed reliable but is not guaranteed accurate by the OneKey® MLS

Contact

Learn More About This Property

StateNY
CountyQueens
CityJamaica
Zip Code11434
Sourced by Back At You
Nearby Listings (Within 1/4 mile)
Price: $899K - $1.499M
sqft: 2,000 - 3,500
Nearby Listings Property ImageNearby Listings Details
14003 161st Street Property Photo 1
$989,000
14003 161st Street
Jamaica, NY 11434
Listing Updated: November 5, 2025 at 1:02:25 PM PST