
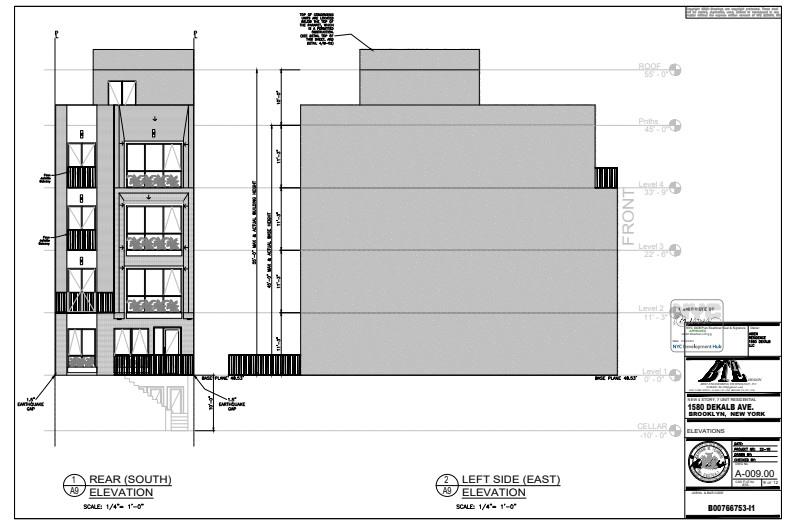
Introducing a prime development opportunity for a 25x100 lot, strategically located and boasting approved plans for a modern 4.5-story building containing 7 residential units. This project promises to deliver a total of 5,500 square feet of living space, designed to meet the demands of today's urban lifestyle. The foundation work has already commenced and is nearing completion, providing a head start for any potential developer or investor looking to capitalize on this exceptional project. With the groundwork laid, you can move forward with construction and bring your vision to life without delay. The attached plans (1 & 2) provide detailed insights into the layout and design of the building, showcasing the potential for comfortable living spaces that are sure to attract future residents.
| MLS # | 882185 |
|---|---|
| Listing Type | For Sale |
| Sub-Type | Resale |
| Status | Active |
| Year | 2025 |
| Days On Site | 135 |
| Listing Provided By | 5 Boro Realty Corp | Nina Sabag |
| Basement | Y |
|---|---|
| Units | 7 |
| Acreage | 0.06 |
| Cooling | Wall/Window Unit(s) |
|---|---|
| Heating | Other |
| Interior Features | Other |
| Construction Materials | Other |
|---|---|
| Foundation Details | Other |
| Garage Yes / No | No |
|---|
| Utilities | See Remarks |
|---|---|
| Sewer | Public Sewer |
| Tax Year | 2024 |
|---|---|
| Tax Assessed Value | 10320 |
| Tax Annual Amount | 999.44 |
| State | NY |
|---|---|
| County | Kings (Brooklyn) |
| City | Brooklyn |
| Zip Code | 11237 |
| State | NY |
|---|---|
| County | Kings (Brooklyn) |
| City | Brooklyn |
| Zip Code | 11237 |
![]() | $1,200,000191 Wyckoff AvenueBrooklyn, NY 11237 |